Depending on length of stay for 2 guests (plus taxes and fees)
Read more about rates and available discounts >This suite was inspired by the beautiful state of Montana. We spent our summers playing in the creeks and springs in Lolo Hot Springs, Montana and our hearts are still there. Most of the photographic art was done by our 12 year old son. He was enthralled by the wildlife (bison, squirrels and anything he wasn't supposed to chase). He spent hours exploring and capturing these breathtaking images. Our little daughters carefully selected the beautiful stones displayed as well. (We all know kids love collecting rocks, but they were over the moon to learn their collection would actually be displayed!)
Or contact us with your dates:
801-805-4794 (10AM-10PM)
webcontact@aspenwoodmanor.com
Not recommended for more than 6 adults


Note: An extra twin mattress may be brought in and placed anywhere in the suite to accommodate an extra guest.
We provide a diverse selection of pillows for your comfort. Some bedding includes down feathers. Alternate bedding accommodations are available upon request.
Fridge (no ice maker)
Microwave
Coffee maker
Coffee not provided
Dining table: 4 seats
Dishwasher
(detergent provided)
Full-size stove and oven
Basic dishes and eating utensils, mixing bowls, cookie sheets, cutting boards and knives, pots/pans and cooking utensils.
Other items that may be present are woks, grills, specialty utensils and specialty appliances, but these items are not guaranteed.
or contact us with your dates:


This suite will accommodate children, but it is not as ideal as some of our other suites.
Kids can be accommodated in most suites. This rating is meant as a guide for how comfortably a suite fits kids.

This suite is a satellite property located about 1/2 mile from the main building. It’s still within the downtown area. For the privacy of the residents in the building, the exact address is given when a reservation is made.
If you are planning a group stay and wish to know which suites are next door and/or in the same building, please reach out by phone or email or check our our group bookings page. We'd love to help you plan!




Why guests adore this suite
Every one of our suites is thoughtfully designed and furnished with you in mind. Here are some of the top favorites of this suite:
Description
Description
Description
Let us know how we can make you more comfortable. If you have any special requests, please give us a call to see how we can help you.
If you have an allergy to down/feathers, please let us know and we will gladly remove the down bedding. We use plant based cleaners and no artificial air fresheners.
We love our city and can't wait to share it with you. Check out our Provo Insider to find all the hidden gems Utah has to offer during your stay.
We have been in business since 2008 and served over 15,000 guests. You won't find that kind of reliable commitment to your stay from other short-term rental companies.
All suites are self check-in. You will receive a code prior to check in that will give you access to your suite. Check in is 5:00PM, check out is 10:00AM. Early check-in to 3:00PM for $15, late checkout for $25/hour.
You will see a fireplace pictured. This is NOT a working fireplace. Do not attempt to build a fire.
NEST thermostat with dedicated HVAC system
We've found the problem is usually that the windows aren't closed or locked. Locking the windows properly will cut down 95% of the street noise. For those extremely sensitive to sound, we recommend that you select a top floor suite in either of our buildings.
Large, open windows with a great view
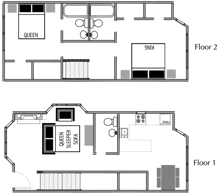
This suite features 2 main bedrooms! Each main has a private full bathroom
Both mains have large closets
Private town home
This suite is on the 3rd floor. There are 2 flights of stairs and no elevator. Once in the suite there are no stairs. There is a walk-in shower in the master bedroom.
2 reserved covered parking stalls
We try to keep our website as up to date as possible. However, if a certain amenity listed is extremely important to you, please do reach out to make sure it is available.
Quiet house from 10pm-8am. We take noise complaints very seriously so if something is disrupting you, please reach out.
This is our only suite with installed carpet. We require guests to be respectful of this carpet and not wear shoes or eat on carpeted areas (stairs and upstairs bedrooms). The main living area is hardwood.

Absolutely no smoking, hookah or vaping anywhere on the property. A $900 fine and immediate eviction will occur. Please do not try to sneak and use e-cigarettes, vaporizers or hookahs. We can tell. excessive air freshener use will not cover a smell and will result in a deep cleaning charge. If you smoke, please do so across the street.

Be respectful of other guests in the Manor by adhering to our quiet hours between 10:00PM TO 8:00AM. Failure to keep quiet hours may result in eviction. If your neighbors are being excessively disruptive, please let us know so we can help you.

Sorry, to respect our guests with allergies, we do not allow animals of any kind on our premises. Failure to comply will result in immediate reservation cancellation with no refund and a $300 fine. If you need to house your pet while visiting Provo, we highly recommend Rover.com
or contact us with your dates:
































































































